Layoutplanung

Layoutplanung ist ein mehrstufiger Prozess, der dem Grundsatz gehorcht: "vom Groben zum Feinen".

Grundlagenermittlung

Grundlage jeder erfolgreichen Fabrikplanung ist eine möglichst gute Kenntnis des bestehenden Zustandes. Egal, ob Neuplanung, Erweiterungsplanung oder Umplanung - am Anfang steht eine umfassende Grundlagenermittlung und Ist-Analyse. Diese ist das entscheidende Fundament für zukünftige Veränderungen. Das ist auch der Grund, warum wir sehr intensiv vor Ort bei und mit unseren Kunden arbeiten. Nur so entsteht die enge Verbindung zum Betrieb, die notwendige Voraussetzung für eine wirkungsvolle Fabrikoptimierung ist.

Grundlagenermittlung

Grobplanung

Die Layoutplanung beginnt bei dem Blocklayout, das ja auch das Ergebnis der Werkentwicklungsplanung ist. Dieses Blocklayout - häufig auch als Flächenlayout bezeichnet - wird Schritt für Schritt zu einem Feinlayout erweitert. Hier fließen nun auch immer mehr Anforderungen des Betriebes, der Logistik, des Umweltschutzes und der Behörden in die Planung ein. Auch daran kann man erkennen, dass die Fabrikoptimierung ein facettenreicher Prozess ist.

Layoutplanung

In allen Phasen der Layoutplanung gilt: Nur ein Fertigungslayout, das man auf den ersten Blick versteht, ist so transparent, dass es die Produktionsabläufe optimal unterstützt. Wie soll der Mitarbeiter vor Ort die Zusammenhänge erkennen und leben können, wenn dies schon nicht beim "Blick von oben" möglich ist? Gehen diese Zusammenhänge aber im täglichen Leben unter, kann der Prozess einer ständigen Fabrikoptimierung nicht nachhaltig gelingen.

Blocklayout

Infrastruktur

Nicht zuletzt schlägt sich diese Forderung in einer strukturierten und geradlinigen Versorgungs-Infrastruktur der Maschinen, Anlagen und Arbeitsplätze nieder. Gemeint ist hier nicht nur die Versorgung mit Energie und Medien, sondern vor allem auch die reibungslose Versorgung mit Material. Als Fabrikplaner achten wir selbstverständlich auf solche Zusammenhänge.

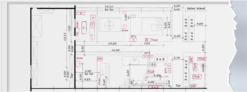
Maschinenaufstellungsplan

Schließlich wird das Fertigungslayout noch in einen ganz konkreten Maschinenaufstellungsplan umgesetzt. Jede Maschine und Anlage, jeder Arbeitsplatz und jeder Zwischenpuffer müssen exakt maßstäblich in diesen Plan eingezeichnet werden, damit man für die anschließende Realisierungsphase eine verlässliche und praktikable Grundlage hat - irgendjemand muss ja letztendlich die Layoutplanung in die Realität umsetzen.

Layoutplanung ist kein Zufallsprodukt, sondern ein systematischer Verbesserungsprozess, um Ordnung im Betrieb zu schaffen.

Blocklayout

Layoutplanung in Stichworten

  • Grobplanung
  • Layoutplanung
  • Fertigungslayout
  • Strukturierte Versorgungs-Infrastruktur
  • Maschinenaufstellungsplan

KONTAKT

Daniel Jungk, M. Sc.
Wirt.-Ing.

Rufen Sie uns an unter der:
02051 / 80 76 7 - 10
info@fastplan.de